Наша каркасная баня – практичный и доступный вариант для любого участка. Просторные парная и гостиная позволят хорошо расслабиться в приятной кампании. Баня имеет санузел и душевую кабину.
Получить смету
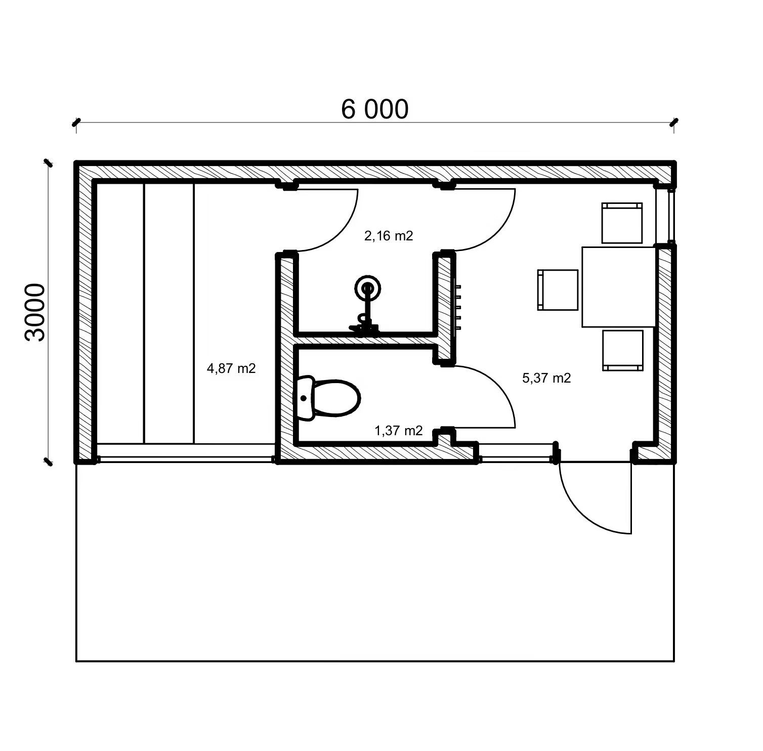
Планировка
Площадь застройки
18 м²
Гостинная
5,37 м²
Парная
4,87 м²
Душевая
2,16 м²
Сан.узел
1,37 м²
Комплектация
Каркас дома выполнен из Вологодской строганой доски камерной сушки. Весь каркас обработан огнебиозащитой.
Стены, пол и крыша утеплены ватой “Ursa Terra” и “Техниколь Роклайт”, толщина утепления 200/150/100 соответственно.
Профессиональная пароизоляция в конструкциях пола, стен и кровли, герметично проклеенная на стыках.
Профессиональная ветро-гидроизоляция в конструкциях пола, стен и кровли.
Наплавляемая двухслойная кровля (гарантийный срок 25 лет) с небольшим уклоном и открытым водостоком.
Чистовая внутренняя отделка: на полу износостойкий влагостойкий ламинат, на стенах окрашенная имитация бруса карельского профиля, в санузле плитка.
Энергоэффективные стеклопакеты “Smart” c i-напылением, окна с поворотно-откидными механизмами, немецкая фурнитура.
Двери межкомнатные глухие со звукоизоляцией, итальянская фурнитура.
Скрытая электропроводка в самозатухающей гофрированной ПВХ трубе, выключатели, розетки, светодиодные светильники, электрощит с автоматами “Schneider”.
Скрытая разводка труб водопровода и канализации во всем доме.
Принудительная вытяжка из зоны кухни и санузла.
Электрический теплый пол в санузле.
Инфракрасный теплый пол под ламинатом.
Термо датчик в каждой комнате.
Наружные светодиодные светильники и влагостойкие розетки на террасе.
Свайно-железобетонный фундамент или другой вид свай от зависимости геологических свойств почвы (длина свай 3,0м, диаметр 150*150мм, обвязка сухой строганой доской 45*145мм в три слоя).
Доставка на 20 км от производства г. Севастополь.
Монтаж дома на участке, запуск дома в эксплуатацию (при наличии наружных сетей).
Терраса из ДПК доски или лиственницы.
Навес над террасой и ограждения террасы.
Сантехническое оборудование.
Кондиционер.
Дровяная печь-камин.
Оставьте заявку на дом Мы перезвоним и ответим на вопросы